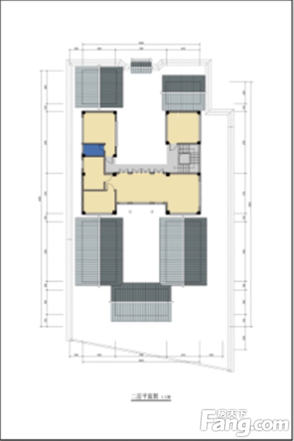
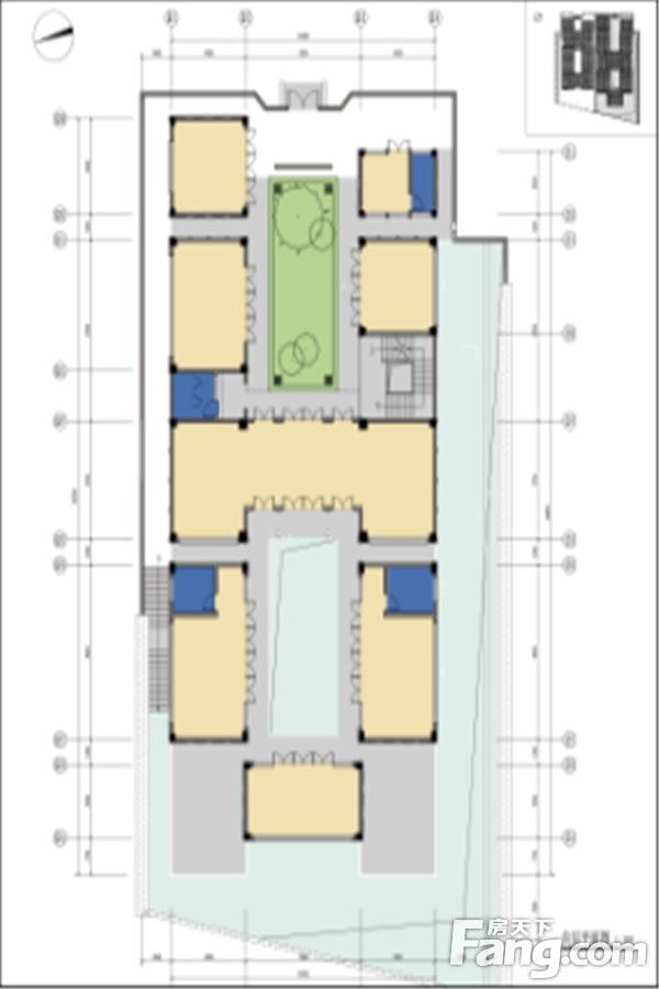
沚院

在售

  • 改善优选
  • 低密居所