-
楼盘动态金地环湾城即将于3月推出全新住宅房源 2025-03-04
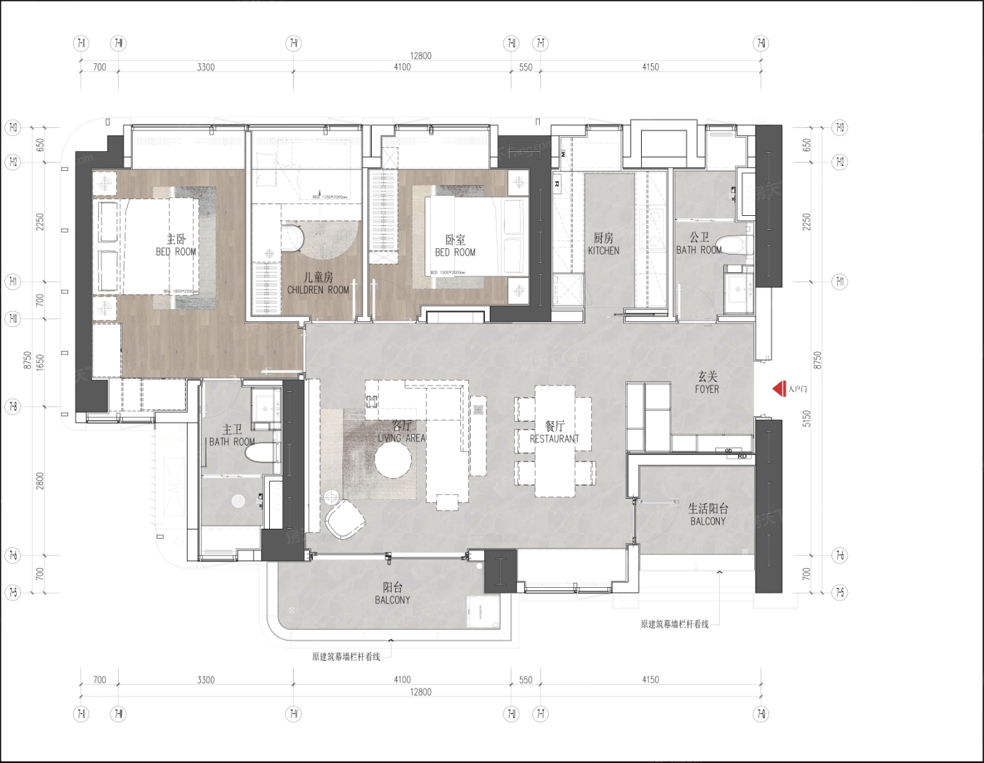
据悉,金地环湾城计划在3月推出全新一批住宅产品,共计282套房源,主力户型为建筑面积约111至125平方米的三房设计,这也是该项目三房产品的收官之作。 目前,项目正在持续销售中,......
-
楼盘资讯金地环湾城预计明年一季度推出282套全新住宅房源 2025-02-08
金地环湾城项目计划于2025年第一季度加推约282套全新住宅房源,目前项目正在持续顺销中。 其中,1栋一单元将以精装修标准交付,而四单元则为毛坯交付,备案均价为每平方米11342......
-
优惠活动金地环湾城热销进行时 整体均价约112170元/㎡ 2024-03-06
金地环湾城目前正处于火热销售阶段,项目整体均价约为112170元/㎡。 其中,1栋一单元提供精装交付标准,而四单元则为毛坯交付,其备案均价达113429元/㎡。 另外,2023......
-
优惠活动金地环湾城火热销售中 整体均价约为112170元每平米 2024-01-17
金地环湾城目前正处于火热销售阶段,项目内1栋一单元将以精装标准进行交付,而四单元则为毛坯交付,其备案均价达113429元每平方米。 另外,于2023年9月首次推出的1栋二单元与三......
-
楼盘动态金地环湾城获新预售许可 即将推出313套精品住宅 2023-12-07
近日,金地环湾城成功取得新的预售许可证,此次获批预售的房源涵盖1栋一单元与1栋四单元,总计404套房源。 其中,有91套房源被预留作为平安银行回迁物业备选房,实际可售房源为313......
3室2厅
3室2厅
3室2厅
3室2厅
4室2厅
4室2厅
5室2厅
5室2厅
5室2厅
5室2厅
- 深圳市福田投资控股有限公司
- 70年
- 62404
- 1048354
- 40%
- 9.00
- 暂无信息
- 2396
- 住宅8.9元/㎡/月
- 深圳市金地新沙物业服务有限公司
- 有装修
消息通知(您的信息将严格加密)
金地环湾城 在售
112170 元/㎡
微信扫码拨号









