-
楼盘资讯炎华置信花间君邸推出全新洋房系列 2022-10-25
炎华置信花间君邸项目目前在售119至608平方米的洋房,清水价格区间约为7189至17300元每平方米。 项目当前正处于建设阶段,预计将在2023年5月实现整个小区的统一交付。 ......
-
楼盘资讯炎华置信·花间君邸11、13#房源取证公告 2022-07-13
炎华置信·花间君邸11、13#近日成功取证,推出共计28套清水房源。 户型涵盖多种选择,区间为119.5至403.86平方米,单价则在7324至16409元每平方米之间。 ......
-
楼盘资讯炎华置信·花间君邸预计于2023年5月交付新房 2022-05-29
炎华置信·花间君邸预计在2023年5月进行新房交付。 项目提供120平方米至160平方米的三至六居室户型。 地址位于观湖路368号,物业费用为每月每平方米3.5元。 该项目的......
-
楼盘动态炎华置信·花间君邸计划于2023年5月交付新房 2022-04-28
炎华置信·花间君邸预计在2023年5月交付新房,每平方米售价为16000元。 物业费用为每月每平方米3.5元。 绿化覆盖率达到60%,容积率为1.5。 该项目位于观湖路368......
-
优惠活动炎华置信·花间君邸洋房热销 2022-02-10
炎华置信·花间君邸的清水洋房目前在售,面积范围为120-160平方米,总价从185万元起,平均价格为每平方米16000元。 如需了解更多详细信息,欢迎咨询售楼部。 ......
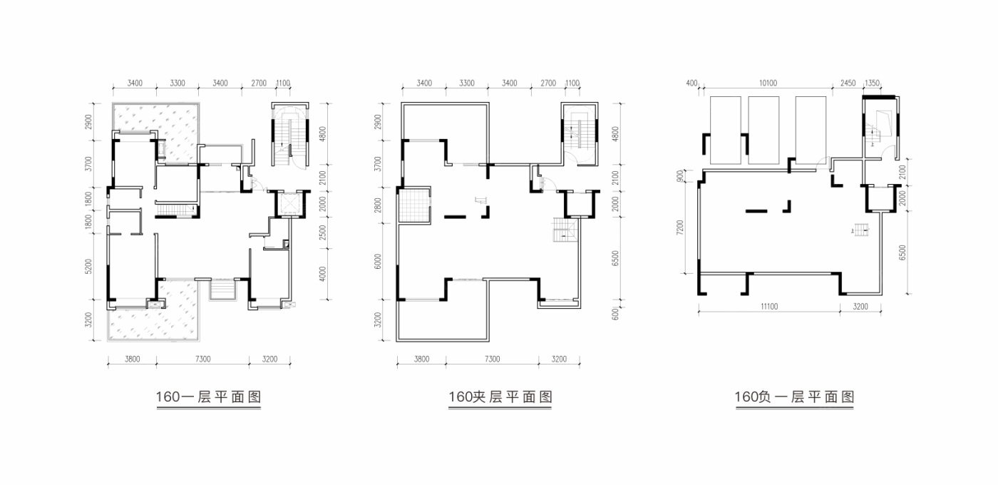
3室2厅
4室2厅
4室2厅
4室2厅
6室4厅
- 成都新都腾信联房地产开发有限责任公司
- 70年
- 28273
- 54443
- 60%
- 1.50
- 613个
- 269
- 住宅3.5元/㎡/月
- 成都洁华物业管理有限公司
- 毛坯
消息通知(您的信息将严格加密)
炎华置信·花间君邸 在售
14000 元/㎡
微信扫码拨号









