-
楼盘资讯香江·悦湖春天14#、15#房源取证公告 2024-04-30
香江·悦湖春天14#、15#共139套房源已经完成取证,预/现售号为510114202472579。 项目提供多种户型选择,区间在约95-115平方米之间,清水均价约为7751元......
-
楼盘动态香江·悦湖春天最新动态 2022-05-22
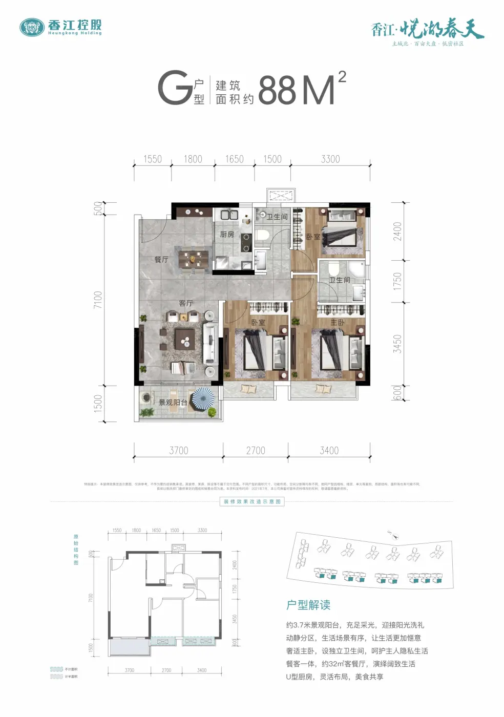
香江·悦湖春天物业费为住宅2元/㎡·月,预计于2023年7月30日交房。 项目采用小高层与板塔结合的设计。 目前在售的户型面积从77平方米至114平方米不等,均为三居室。 小......
-
楼盘资讯香江·悦湖春天最新动态 2022-04-21
香江·悦湖春天项目坐落于列维士路369号,预计于2023年7月30日正式交付。 该项目的容积率为3,绿化率达到了35%,提供多样化的户型选择,主力建面范围约在77至114平方米之......
-
楼盘动态香江·悦湖春天最新价格及交房信息 2022-03-21
香江·悦湖春天的售价为7000元/平方米。 该项目的绿化率为35%,预计将在2023年7月30日完成交房,采用毛坯交付方式。 香江·悦湖春天位于列维士路369号,总共有17栋楼......
-
楼盘动态香江·悦湖春天定于2023年7月30日交付新房源 2022-02-18
香江·悦湖春天计划于2023年7月30日交付新房源,当前售价为每平方米7000元。 该项目的容积率为3,采取毛坯交付方式。 香江·悦湖春天位于列维士路369号,绿化率达到了35......
3室2厅
3室2厅
3室2厅
3室2厅
3室2厅
3室2厅
- 成都繁城香江房地产开发有限公司
- 70年
- 38669
- 183566
- 35%
- 3.00
- 1201个
- 1201
- 住宅2元/㎡/月
- 成都香江全球家居城有限公司
- 毛坯
消息通知(您的信息将严格加密)
香江·悦湖春天 在售
7751 元/㎡
微信扫码拨号
-
均价待定[青羊]石马巷8号
-
均价20900元/㎡[青羊]头福街1号
-
均价28600元/㎡[锦江]金融城东·锦江大道·白鹭湾公园旁
-
均价待定[锦江]东大路328号(沙河公园旁)
-
均价60000元/㎡[上海]海秀路1号
-
均价34273元/㎡[武侯]南桥四路1号
-
均价20401元/㎡[武侯]九架车巷478号
-
均价580万/套[武侯]铁佛工业区二路
-
均价22000元/㎡[成华]东中环民兴二路
-
均价29365元/㎡[金牛]互通一路1路
-
均价34000元/㎡[金牛]泊木三街39号
-
均价27936元/㎡[金牛]涧芳一街233号
-
均价26000元/㎡[金牛]盛达横街368号
-
均价27000元/㎡[金牛]涧芳二街333号
-
均价10177元/㎡[金牛]蜀西路66号(中海国际购物公园对面)
-
均价16000元/㎡[金牛]子云路139号
-
均价300万/套[金牛]抚琴西北街
-
均价34500元/㎡[高新区]万象天地(在建)旁
-
均价301万/套[高新区]康华路690号
-
均价54999元/㎡[高新区]天府大道北段1599号(交子公园南)









